Fast, Accurate Measurement of a Complex Space21405
Pages:
1|
Strauss VP/Business Development Atlanta, Georgia |
InnoDraw private msg quote post Address this user | |
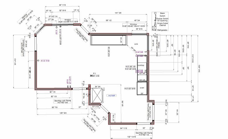
| This kitchen included two non-square areas and a bay window, typically a challenge to measure and draw. Using InnoDraw, we captured the full geometry accurately and turned it into one clean, easy-to-read drawing—fast. By getting it right the first time, InnoDraw helped the project team save both time and money, eliminating re-measures, delays, and guesswork. Even complex spaces don’t have to be complicated when measured correctly! ![]() ![]() ![]() ![]() |
||
| Post 1 IP flag post | ||
Pages:
1




















