Tiny spaces. Big opportunity. Big risk.21507
Pages:
1|
Strauss VP/Business Development Atlanta, Georgia |
InnoDraw private msg quote post Address this user | |
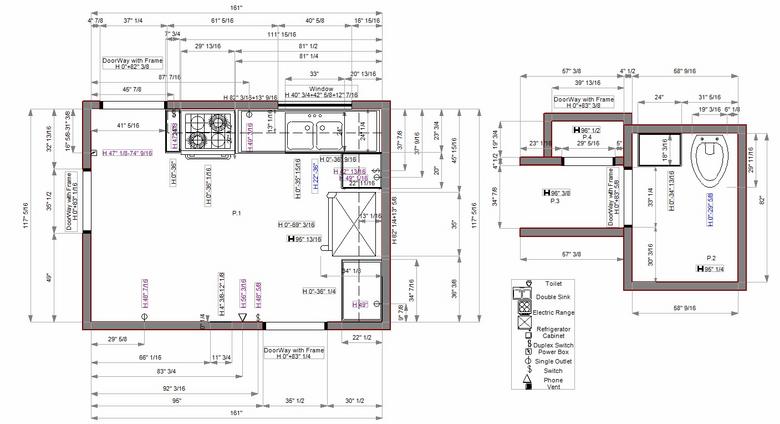
| This project included four compact areas — a kitchen, toilet, and two additional small rooms. In spaces like these, every millimeter matters. One missed detail = delays, redesigns, and lost margins. That’s where InnoDraw comes in. Turn on-site measurements into instant, CAD-ready drawings — no manual redraw, no guesswork. ✔ Capture everything the first time ✔ Eliminate costly errors ✔ Speed up quotes and approvals Measure once. Deliver faster. Win more. ![]() ![]() ![]() |
||
| Post 1 IP flag post | ||
Pages:
1


















