Complicated Angles? Captured with Confidence.21452
Pages:
1|
Strauss VP/Business Development Atlanta, Georgia |
InnoDraw private msg quote post Address this user | |
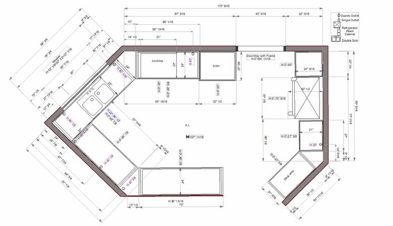
| Not every space follows straight lines. Angled walls, tight corners, and irregular layouts can quickly complicate the measuring process — and leave little room for error. With InnoDraw, even the most complex geometries are captured quickly and with precision. Every angle is measured accurately on-site, ensuring designers receive a clean, production-ready drawing they can trust from day one. Less complexity in the field means more confidence in the design. InnoDraw turns challenging layouts into clear, build-ready plans — faster than ever. ![]() ![]() ![]() ![]() |
||
| Post 1 IP flag post | ||
Pages:
1



















