Instantly converted laser measurements into Production-Ready CAD Files!21436
Pages:
1|
Strauss VP/Business Development Atlanta, Georgia |
InnoDraw private msg quote post Address this user | |
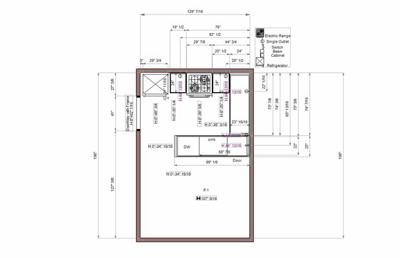
| Kitchen remodels rarely start with an empty room. In this project, InnoDraw delivered precise 2D and 3D CAD drawings while working around existing cabinetry, appliances, and on-site obstacles. Using real-time laser measuring, every detail was captured directly on site—ensuring the drawings reflected the space exactly as it exists, not as assumed. The data was captured once and instantly converted into production-ready CAD files, allowing the design and installation teams to work from accurate, reliable drawings immediately. By measuring precisely around real-world conditions, the project moved forward faster, with fewer revisions and no surprises. That’s the value of InnoDraw: measure once, draw instantly, and build with confidence. ![]() ![]() ![]() |
||
| Post 1 IP flag post | ||
Pages:
1


















