Another Project, Another Level of Precision!21424
Pages:
1|
Strauss VP/Business Development Atlanta, Georgia |
InnoDraw private msg quote post Address this user | |
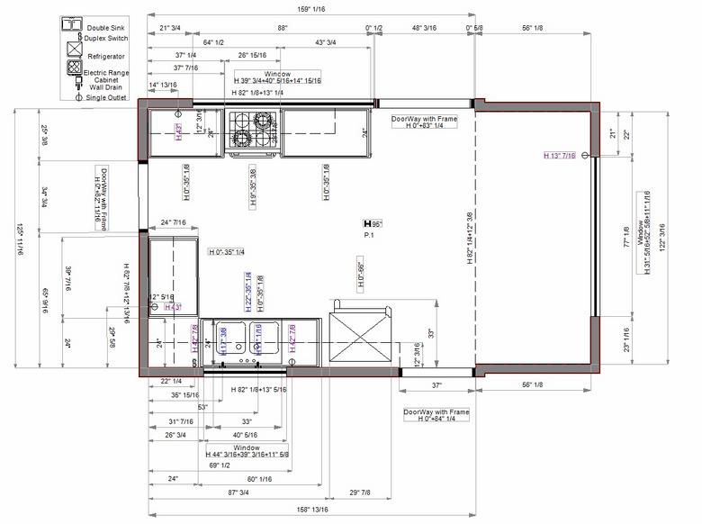
| Another great job by InnoDraw! This project is a perfect example of how detailed, accurate field data leads to better design outcomes. The scan captured every critical element—including existing cabinetry, appliances, and soffits—giving the design team a complete and reliable foundation to work from. With nothing left to guess, revisions are reduced, timelines are shortened, and results are more precise. This is what InnoDraw is built for: capturing dimensions exactly as they are in real-time — so designers can focus on creating what comes next! ![]() ![]() ![]() ![]() |
||
| Post 1 IP flag post | ||
Pages:
1



















